L-tyypin yksipuolinen koukkupukkinosturi
L-tyypin yksipuolinen pääpalkkikoukkupukkinosturi: L-pukkinosturi koostuu pääasiassa pukkirungosta, nostovaunusta, pitkästä nosturin kulkumekanismista, ohjaamosta ja sähköisestä ohjausjärjestelmästä. Portaalirunko on laatikon muotoinen.

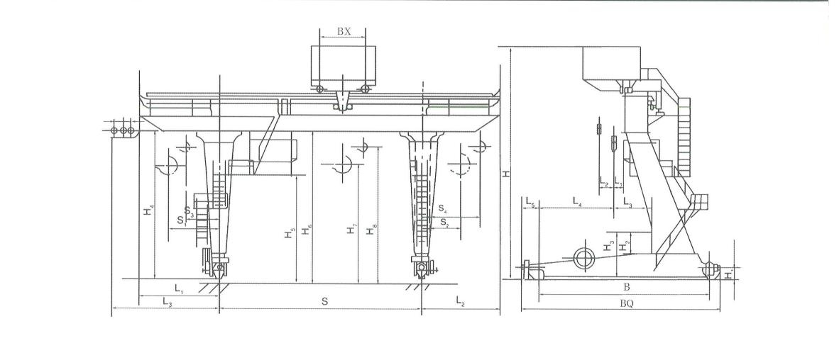
Kapasiteetti: 20-50t
Välipituus: 18/22/26/30/35
Nostokorkeus: 30-40 m
Nostonopeus: 8m/min
Työtehtävä: A5
Raged jännite: Räätälöity
Suojausluokka: IP54

Kuvat ja komponentit

Kaukovalo:kaukopalkki on pukkinosturin päätukirakenne, joka kantaa kuormia ja tukee nostomekanismia, sähkölaitteita ja muita komponentteja.
Nostomekanismi:Nostomekanismi vastaa kuorman nostamisesta ja laskemisesta. Se koostuu moottorista, vaihteistosta, vaijerista ja hihnapyörästä.

Vaijeri:Vaijeria käytetään siirtämään nostomekanismin voima kuormaan. Se on valmistettu erittäin lujasta teräslangasta tai synteettisestä kuitulangasta.

Koukut:Vaijerin päähän on ripustettu koukut kuorman ripustamista ja kuljetusta varten.

Portaali:Portaali on alusta, jolle kaukopalkki on asennettu. Se on suunniteltu liikkumaan kiitotien palkkia pitkin antamaan vakautta ja tukea nosturille.
Kiitotien palkki:Kiitotien palkit tukevat portaalin liikkumista. Ne on yleensä valmistettu teräsbetonista tai teräksestä.
Sähköinen ohjausjärjestelmä:Sähköinen ohjausjärjestelmä on vastuussa nosturin liikkeen ohjaamisesta. Se sisältää kytkimiä, antureita, releitä ja muita komponentteja.
Jarrutusjärjestelmä:jarrujärjestelmää käytetään varmistamaan nosturin toiminnan turvallisuus. Se koostuu levyjarruista, rumpujarruista tai sähkömagneettisista jarruista.

Rajakytkimet:rajakytkimiä käytetään estämään nosturin ylikuormitus tai toiminta-alueen ylittäminen. Ne asennetaan nosturiin ja portaaliin.
Turvallisuuslaitteet:Hätäpysäytyspainike, ylikuormitussuoja, varoitusvalo ja muut turvalaitteet on varustettu käyttäjien ja lähellä olevien jalankulkijoiden turvallisuuden varmistamiseksi.
Luonnos:

Tärkeimmät tekniset tiedot

Edut
1. Säästä tilaa:L-muotoinen muotoilu vie pienemmän alueen kuin muut nosturityypit, mikä säästää tilaa. Tämä on erityisen hyödyllistä varastoissa ja tuotantotiloissa, joissa tila on ylivoimainen.
2. Suuri nostokapasiteetti:L-tyypin yksipuolinen koukkupukkinosturi on suunniteltu kuljettamaan raskaita esineitä, joten se soveltuu suurten raskaiden esineiden nostamiseen ja kuljettamiseen.
3. Helppo käyttää:Koukkurakenne on helppokäyttöinen ja voi sijoittaa tavarat tarkasti. Tämä lisää materiaalinkäsittelyn tehokkuutta ja tarkkuutta.
4. Kompakti muotoilu:L-tyypin yhden kaukopalkkikoukkupukkinosturin rakenne on kompakti ja se on helppo asentaa ja käyttää pienessä tilassa.
5. Korkea suorituskyky:Tämäntyyppiset nosturit ovat yleensä kustannustehokkaampia kuin muut nosturityypit, joten monet yritykset suosivat sitä.
6. Turvatoiminnot:L-tyypin yhden kaukopuomin koukkupukkinosturi on varustettu erilaisilla turvatoiminnoilla, kuten kuormanrajoittimella, hätäpysäytyspainikkeella, kuormanvalvontajärjestelmällä jne. käyttäjien turvallisuuden varmistamiseksi ja onnettomuuksien estämiseksi.
7. Monipuolisuus:Tämän tyyppistä nosturia voidaan käyttää erilaisiin tehtäviin, mukaan lukien kuorma-auton lastaus ja purkaminen, materiaalinkäsittely varastoissa, materiaalinkäsittely tuotantolinjoilla jne.

Sovellus
Varasto ja varastotilat:L-tyypin yhden kaukopuomin koukkupukkinosturia käytetään yleisesti varastoissa ja varastotiloissa, lastaus- ja purkukonteissa, hyllyissä ja muissa raskaissa esineissä. Nämä ympäristöt ovat ihanteellisia tehokkuuden parantamiseen ja manuaalisen työn vähentämiseen.
Tuotantolaitokset:Nämä nosturit soveltuvat raaka-aineiden, valmiiden tuotteiden ja välituotteiden käsittelyyn tuotantolaitoksissa. Niitä voidaan käyttää tuotantolinjoilla, kokoonpanoalueilla ja konepajoissa.
Rakennustyömaat:L-tyypin yksipuolisia koukkupukkinostureita käytetään usein rakennustyömailla palkkien, pylväiden, esivalmistettujen rakenteiden ja muiden raskaiden rakennusmateriaalien nostamiseen ja siirtämiseen.
Telakat ja satamat:Näitä nostureita käytetään telakoilla ja satamissa lastin lastaamiseen ja purkamiseen laivoille, konteille ja proomuille. Sitä käytetään myös raskaiden laitteiden ja koneiden siirtämiseen laitoksen sisällä.
Teräs- ja betonitehtaat:L-tyypin yksipuoliset koukkupukkinosturit ovat tärkeitä teräs- ja betonitehtaille, jotka käsittelevät raaka-aineita, kuten raudoituspalkkia, betonilohkoja ja betonielementtejä.
Autoteollisuus:Näitä nostureita käytetään autoteollisuudessa raskaiden kuormien, moottoreiden ja muiden komponenttien siirtämiseen kokoonpanoprosessin aikana.
Kaivostoiminta ja louhinta:L-tyypin yksipuolisia koukkupukkinostureita käytetään kaivos- ja louhintatoiminnoissa raskaiden kaivoslaitteiden, malmilaatikoiden ja kivimateriaalien nostamiseen ja kuljettamiseen.
Televiestintäteollisuus:Näitä nostureita käytetään voimalinjojen, viestintätornien ja muun yläpuolisen infrastruktuurin asennukseen ja kunnossapitoon.
Konepajat ja tuotantolaitokset:L-tyypin yksipuoliset koukkupukkinosturit soveltuvat suurten, raskaiden työstökoneiden, komponenttien ja valmiiden tuotteiden käsittelyyn näissä ympäristöissä.
Lentokentän rahdinkäsittely:näitä nostureita käytetään lastin, matkatavaroiden ja muiden raskaiden kuormien lastaamiseen, purkamiseen ja kuljettamiseen lentokentän terminaaleissa ja rahtitiloissa.

Nosturin tuotantomenettely

Työpajanäkymä
Yritys on asentanut älykkään laitehallintaalustan ja asentanut 310 sarjaa (sarjaa) käsittely- ja hitsausrobotteja. Suunnitelman valmistumisen jälkeen sarjaa (sarjaa) tulee olemaan yli 500 ja laitteiden verkottumisaste nousee 95 %:iin. 32 hitsauslinjaa on otettu käyttöön, 50 on suunniteltu asennettavaksi ja koko tuotelinjan automaatioaste on saavutettu





Suositut Tagit: l-tyypin yksipuolisten kaukopukkikoukkupukkinosturien valmistajat, toimittajat, tehdas
Seuraava
Sähkönosturi PuolipukkinosturiSaatat myös pitää
Lähetä kysely























